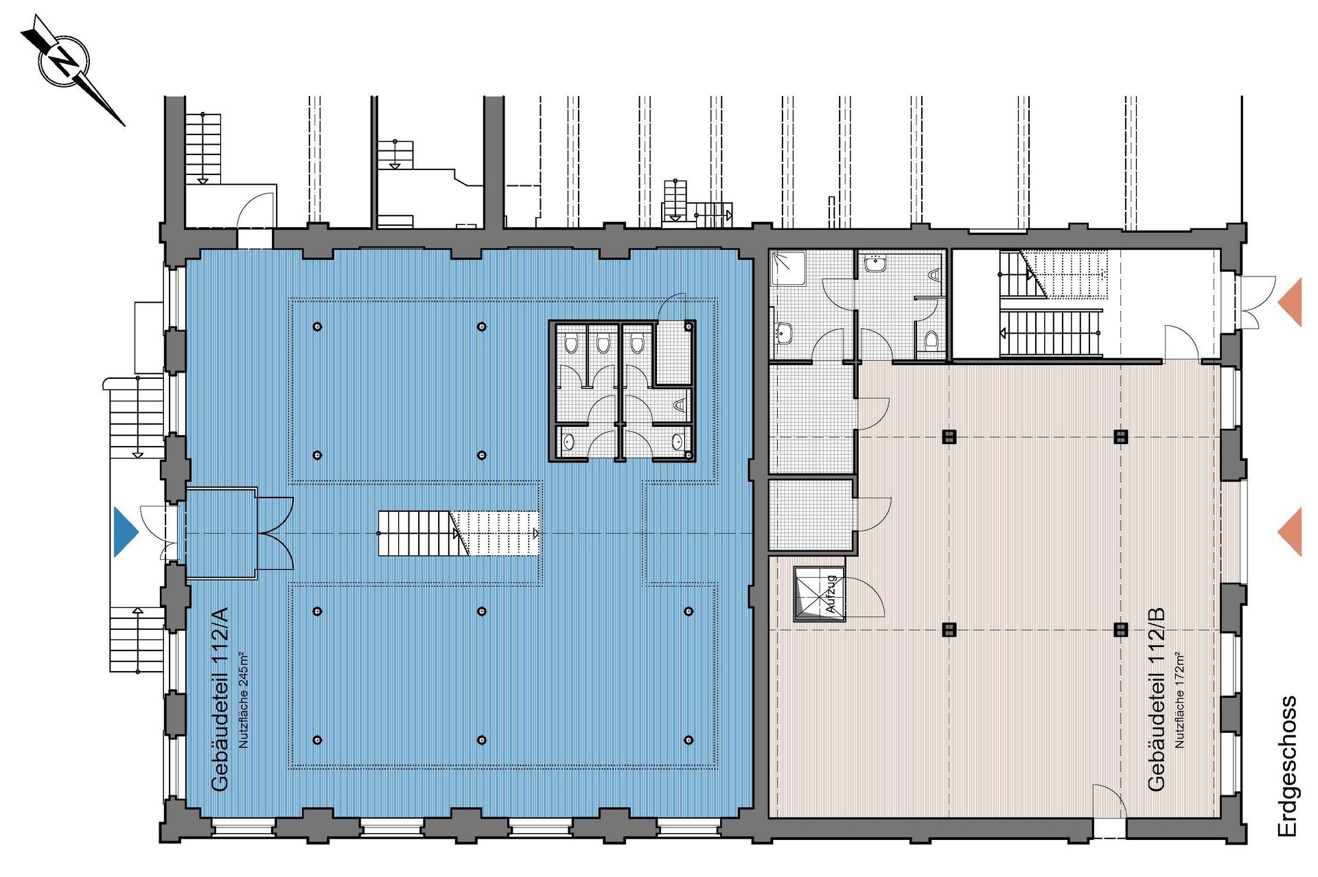
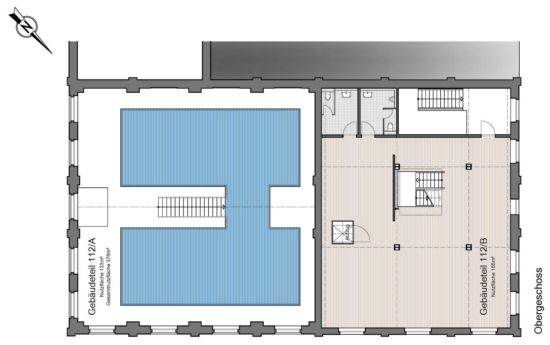
Bürogebäude SBS - Dresden
Das traditionsreiche, über 140 Jahre existierende Stahl- und Metallbauunternehmen beabsichtigt, das nicht mehr für Energie- und Wärmeerzeugung benötigte Gebäude 112 für eine andere Nutzung umzuwidmen. So konnten wir in dieses historische Industriegebäude mit noch vorhandenem Laufkran einen großzügigen zweigeschossigen Bürobereich einordnen.
Über die inneren offenen Treppen auf ein Galeriegeschoss wurde der Kran erhalten und dient als Zeugnis der früheren Nutzung des Gebäudes.

Ausgeführte Planungsleistungen :
- Gebäudeplanung
- Tragwerksplanung
Auftraggeber: Variant Projektentwicklung GmbH
Investitionsvolumen: 1,0 Mio. €


