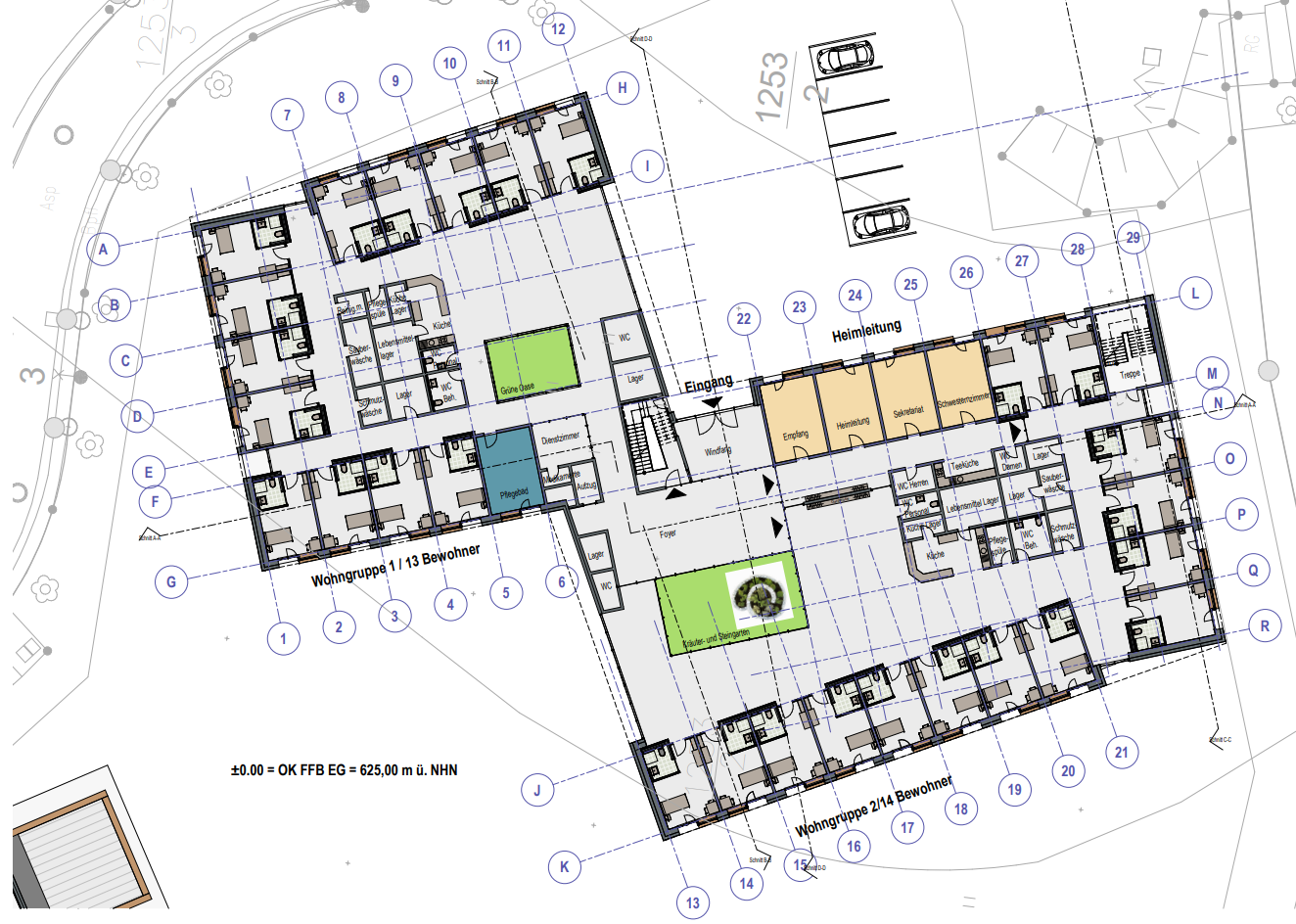
Seniorenpflegeheim im Erzgebirge - Großrückerswalde


Neuer Text

Ausgeführte Planungsleistungen:

  • Leistungssphase 2 der HOAI

Auftraggeber: Diakonie Marienberg